청주 센텀 푸르지오 자이 아파트 분양가 분양공고
청주에서 가장 뜨거운 개발지 하복대에 ‘센텀 푸르지오 자이’가 드디어 분양을 시작합니다. 대우건설과 GS건설, 두 대형 건설사의 브랜드 파워가 결합된 대단지로, 전 세대 중대형 위주 구성, 우수한 교통 접근성, 풍부한 생활 인프라 등 거주 만족도와 미래가치를 모두 잡은 단지입니다. 청약 자격, 분양가, 단지배치도, 인근 시세까지 아래에서 확인해보세요.

1. 사업개요
‘청주 센텀 푸르지오 자이’는 충청북도 청주시 흥덕구 복대동 157번지 일원에 조성되는 재건축 아파트입니다. 지하 2층~지상 최고 35층, 12개동, 총 1,463세대 대단지 규모로 조성되며, 이 중 994세대가 일반분양됩니다. GS건설과 대우건설이 시공하며, 두 건설사 브랜드의 기술력과 상품성이 집약된 프리미엄 단지입니다.


2. 공급내역
일반분양 세대 수는 다음과 같습니다.
- 전용 84㎡: 496세대
- 전용 101㎡: 418세대
- 전용 114㎡: 80세대
전 세대가 중대형 평형 위주로 구성되어 여유 있는 공간 활용과 가족 중심 라이프스타일에 적합합니다.


3. 분양가
분양가는 다음과 같이 책정되었습니다.
- 전용 84㎡: 약 4억2천만 원~4억6천만 원대
- 전용 101㎡: 약 4억8천만 원~5억2천만 원대
- 전용 114㎡: 약 5억4천만 원~5억8천만 원대
계약금은 10%, 중도금 60%(일부 무이자 적용), 잔금 30%이며, 세부 가격은 동·호수 및 층별로 상이합니다. 자세한 분양가는 공식 홈페이지 바로가기 에서 확인 가능합니다.

4. 청약자격 및 전매제한, 재당첨제한
청약 자격은 아래와 같습니다.
- 청주시 및 충청북도 거주자 우선
- 청약통장 가입 24개월 이상 및 예치금 충족자
- 세대주 및 무주택자 우선, 1순위 가점제 100% 적용
해당 단지는 투기과열지구 또는 청약과열지구가 아니므로 전매제한은 소유권 이전 등기 시까지이며,
재당첨 제한은 적용되지 않습니다.
5. 분양일정
청약 및 계약 일정은 다음과 같습니다.
- 입주자 모집공고일: 2025년 7월 5일
- 특별공급 청약: 7월 15일(월)
- 1순위 청약: 7월 16일(화)
- 2순위 청약: 7월 17일(수)
- 당첨자 발표: 7월 23일(화)
- 계약일: 8월 5일(월) ~ 8월 8일(목)
청약은 청약홈 바로가기 를 통해 신청할 수 있으며, 공동인증서 로그인이 필요합니다.

6. 입지환경
청주 센텀 푸르지오 자이는 하복대 중심에 위치하며, 청주IC, KTX오송역, 충북선 청주역 등이 차량으로 약 10분 이내에 위치해 뛰어난 교통 접근성을 자랑합니다. 롯데마트, CGV, 복대시장, 대형 병원, 시립도서관 등 편의시설이 가까이 있으며, 복대초·복대중 등 학세권 단지로 교육환경도 우수합니다. 게다가 하복대 재개발 및 도시계획에 따라 미래가치도 매우 높은 입지입니다.
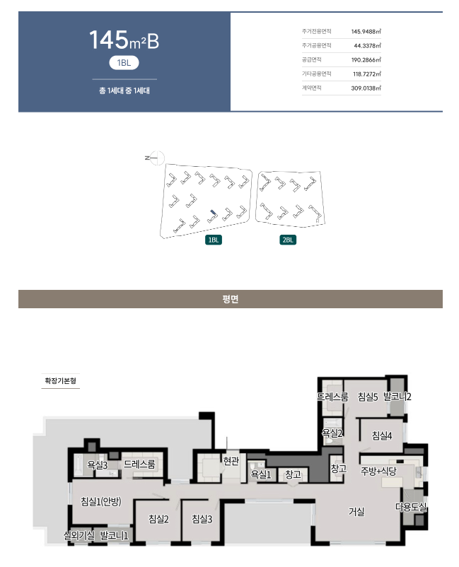
7. 단지배치도 및 평면도
단지는 남향 위주 배치로 채광과 통풍이 우수하며, 중앙에 대규모 커뮤니티 존과 조경 특화 공간이 조성됩니다. 세대 내에는 드레스룸, 팬트리, 알파룸, 확장형 주방 등 실용성을 강조한 설계가 적용되었습니다.















8. 인근단지 시세
청주 복대동 일대 주요 아파트 시세는 다음과 같습니다.
- 복대푸르지오(2011년 입주, 전용 84㎡): 약 3억8천만 원~4억2천만 원
- 힐데스하임 복대(2008년 입주, 전용 84㎡): 약 3억5천만 원~4억 원
센텀 푸르지오 자이는 신축 프리미엄, 중대형 위주 구성, 대형 브랜드 입지를 고려할 때 향후 시세 상승 여지가 높고, 경쟁 단지 대비 상품성이 우수합니다.


9. 마무리
청주 센텀 푸르지오 자이는 입지, 설계, 브랜드, 가격, 청약조건까지 모두 균형 잡힌 신축 단지입니다. 중대형 면적대 희소성과 두 브랜드의 프리미엄, 하복대 미래가치까지 고려할 때 실수요자는 물론, 장기적 시세차익을 기대하는 투자자에게도 좋은 기회입니다. 청약을 계획하고 있다면 모집공고문과 공식 사이트를 통해 세부 정보를 꼼꼼히 확인해보시길 바랍니다.
'real estate news' 카테고리의 다른 글
| 삼성카드 민생회복 소비쿠폰 사용방법 (0) | 2025.07.24 |
|---|---|
| 10호 태풍 바이루 예상경로 (0) | 2025.07.24 |
| 9호 태풍 크로사 예상경로 (0) | 2025.07.20 |
| 민생회복 소비쿠폰 미성년자 신청방법, 세부조건 알아보기 (0) | 2025.07.20 |
| 키미K2, 드디어 중국판 AI 시대 포문 열었다. (2) | 2025.07.20 |